Pancham’s Bar & Sizzler - New Indian restaurant in Epping

Location: Epping, Essex

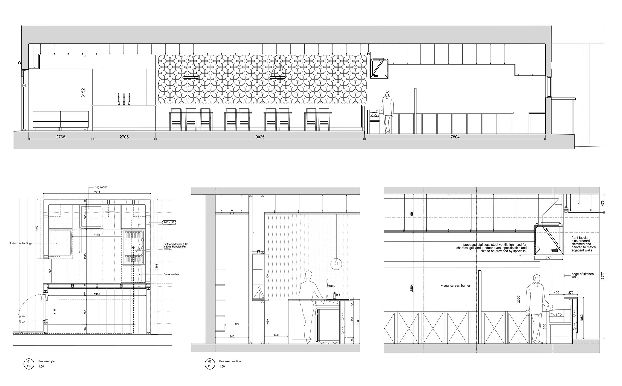
Internal walls were demolished to unite two cellular dining spaces. The convivial layout accommodated around seventy guests with an open kitchen, colourful bar and feature walls celebrating contemporary Bengali art.

Previous
Previous

Bath Masterplan